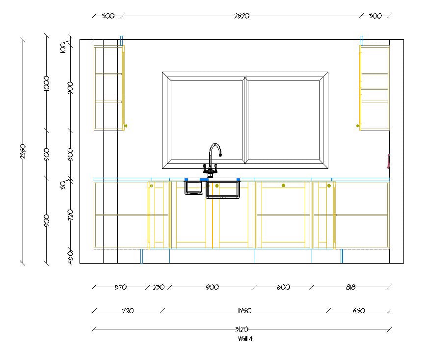
Technical Drawings & Planning Documentation

We offer detailed technical drawing services including:

Technical Drawings & Planning Documentation

Technical Drawings & Planning Documentation | Thrianda Bespoke Interior & Architecture Design & Construction London England
Technical Drawings & Planning Documentation | Thrianda Bespoke Interior & Architecture Design & Construction London England

- Planning Pemission
- Loft Conversion
- Building Control Plans
- Fire Safety Drawings
- Furniture Detail Drawings

All plans comply with UK building regulations and local authority requirements.

Thrianda Bespoke Interior & Architecture Design & Construction

We work closely with clients from concept to completion, ensuring that the final result is not only aesthetically refined but also technically sound and deeply personal.

" Let's build something beautiful together "

© Copyright 2025 Thrianda - All Rights Reserved